2 500 000 Р 32 120 $ или 27 610

Информация о квартире

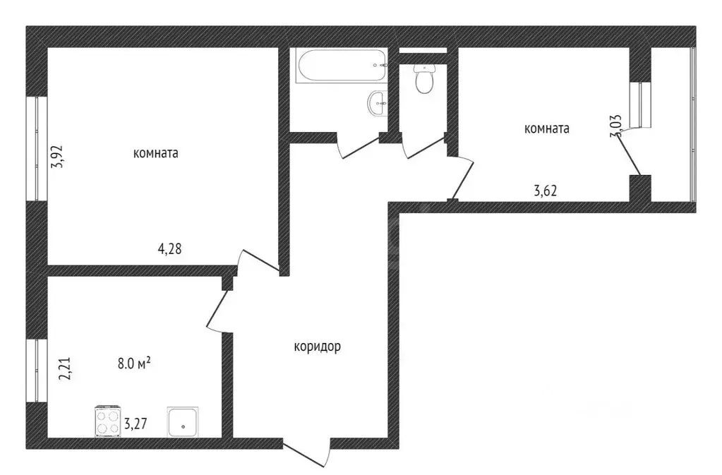
48 м2
Площадь
8 м2
Кухня
2
Комнаты
5
Этаж
9
Этажность

Дополнительная информация

Тип дома
панельный
Развернуть
Агент
+7 (912) 562-08-38
Начать чат с агентом

2-к кв. Коми, Усинск Приполярная ул., 10А (48.0 м)

Просторная двухкомнатная квартира площадью 48 кв. м на 5-м этаже предлагается к продаже. Объект отличается рациональной планировкой с изолированными комнатами, что обеспечивает комфортное проживание для семьи или пары. Кухня площадью 9 кв. м оснащена газовой плитой, что является значительным преимуществом для приготовления пищи. В квартире выполнен свежий косметический ремонт, готовый к заселению, установлены современные пластиковые окна, гарантирующие сохранение тепла и тишину в помещении. Наличие балкона добавляет объекту функциональности, предоставляя дополнительное пространство для отдыха или хранения. Квартира подключена к интернету, что позволяет сразу воспользоваться всеми коммуникационными услугами без дополнительных подключений. Этажность обеспечивает хорошую инсоляцию и отсутствие шума с улицы. Это надежное решение для тех, кто ишет вариант с оптимальным соотношением цены и качества, не требующий дополнительных вложений в ремонт и готовый для комфортного проживания. Рядом находится школа и детский сад. Код пользователя: 118247Номер в базе:

Читать полностью

    Для того, чтобы купить двухкомнатную квартиру по адресу: Усинск, ул. Приполярная, 10А, позвоните по телефону +7 (912) 562-08-38. Торопитесь! Объявление №30092958719 о продаже двухкомнатной квартиры опубликовано Вчера.

    Позвонить Написать
    2 500 000 Р32 120 $ или 27 610
    Агент
    +7 (912) 562-08-38
    Начать чат с агентом
    Похожие предложения
    1-к кв. Коми, Усинск Приполярная ул., 10А (35.1 м) - Фото 1
    1-к кв. Коми, Усинск Приполярная ул., 10А (35.1 м) - Фото 2
    1-комнатная квартира, общая площадь 35м², кухня 8м²

    Продается шикарная однокомнатная квартира с современным ремонтом в хорошем районе Эта уютная и стильная квартира идеально подходит как для проживания, так и для инвестиций.Особенности квартиры:Площадь: 31,5 мЭтаж: 8 из 9, с отличным видом из оконРемонт:...
    • 35 м²
    • 1-ком
    • 8/9 эт.
    • панельный
    2 500 000 Р
    Агент
    +7 (912) Показать номер
    Посмотреть контакты
    3-к кв. Коми, Усинск Приполярная ул., 10 (66.4 м) - Фото 1
    3-к кв. Коми, Усинск Приполярная ул., 10 (66.4 м) - Фото 2
    3-комнатная квартира, общая площадь 66м², жилая 41м², кухня 8м²

    Квартира 125 серии, большая кухня. Косметический ремонт. Мебель, б/техника. В шаговой доступности д/сад, школа 5.
    • 66 м²
    • 3-ком
    • 4/9 эт.
    • панельный
    2 600 000 Р
    Агент
    +7 (912) Показать номер
    Посмотреть контакты
    3-к кв. Коми, Усинск Приполярная ул., 6 (67.9 м) - Фото 1
    3-к кв. Коми, Усинск Приполярная ул., 6 (67.9 м) - Фото 2
    3-комнатная квартира, общая площадь 67м², кухня 10м²

    Квартиру можно купить в РАССРОЧКУ Обсуждается все индивидуально В продаже светлая трёхкомнатная квартира с ремонтом расположенная на 5 этаже 5-ти этажного дома. Имеется все необходимое для комфортного проживания. Квартира теплая, стены, потолки ровные,...
    • 67 м²
    • 3-ком
    • 5/5 эт.
    • кирпичный
    2 400 000 Р
    Агент
    +7 (912) Показать номер
    Посмотреть контакты
    3-к кв. Коми, Усинск Приполярная ул., 6 (70.2 м) - Фото 1
    3-к кв. Коми, Усинск Приполярная ул., 6 (70.2 м) - Фото 2
    3-комнатная квартира, общая площадь 70м², кухня 9м²

    ПРОДАЕТСЯ уютную просторная 3-комнaтная квартира в ухоженном состоянии по адресу: г. Усинск. ул. Приполярная, д. 6, Квартира расположена на 1-этаже, 5-ти этажного дома, имеет общую площадь 70,2 кв.м, в отличном расположении города, где имеется вся необходимая...
    • 70 м²
    • 3-ком
    • 1/5 эт.
    • кирпичный
    2 600 000 Р
    Агент
    +7 (912) Показать номер
    Посмотреть контакты
    2-к кв. Коми, Усинск Возейская ул., 17 (51.9 м) - Фото 1
    2-к кв. Коми, Усинск Возейская ул., 17 (51.9 м) - Фото 2
    2-комнатная квартира, общая площадь 51м², жилая 28м², кухня 8м²

    Квартира 125 серии, с большой кухней. Капитальный ремонт-стены, потолки выровнены, полы-стяжка. Поменяны межкомнатные двери, электропроводка, трубы водоснабжения, приборы отопления. Ванная, туалет-кафель. стеклопакеты по всей квартире и на лоджии. Имеется...
    • 51 м²
    • 2-ком
    • 5/9 эт.
    • панельный
    2 400 000 Р
    Агент
    +7 (912) Показать номер
    Посмотреть контакты

    Не нашли подходящего объявления?

    Оставьте заявку, и наши риэлторы подберут квартиру в районе Усинска

    (0)