2 600 000 Р 32 010 $ или 27 710

Информация о квартире

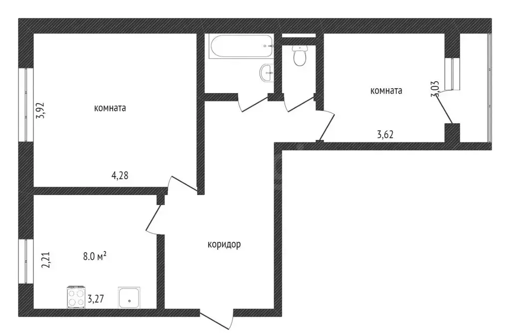
52 м2
Площадь
9 м2
Кухня
2
Комнаты
2
Этаж
9
Этажность

Дополнительная информация

Тип дома
панельный
Развернуть
Агент
+7 (912) 561-64-32
Начать чат с агентом

2-к кв. Коми, Усинск ул. Мира, 15 (52.1 м)

Продаётся двухкомнатная квартира, площадь 52,1 м.кв. по ул. Мира, д. 15. Прекрасное расположение, в шаговой доступности: Школы Спорта, Искусств, МБОУ 5, 6, Дворец Культуры, Городской бассейн, лыжная трасса. В квартире сделан косметический ремонт, установлены стеклопакеты. Перепланировка узаконена.Ванная комната - кафель. Хорошие, тихие соседи. Квартира без долгов и обременений, документы готовы к сделке. Реальные фотографии от данного объекта. Просмотр объекта в присутствии собственника. Цена объекта указана без комиссии агентства. Оплата агентству по договору. Готова ответить на все вопросы по указанному телефону. Звоните, записывайтесь на удобное время просмотра Гарантия безопасности сделки, юридическое сопровождение. Поможем с оформлением ипотеки. Для клиентов компании Этажи банки предоставляют преференции по ставке ипотечных программ, что позволяет сэкономить довольно значительную сумму денежных средств. Ипотечный брокер подаст заявку сразу во все крупнейшие Банки, предоставив минимальный пакет документов. Код пользователя: 118262Номер в базе: 9809523

Читать полностью

    Для того, чтобы купить двухкомнатную квартиру по адресу: Усинск, ул. Мира, 15, позвоните по телефону +7 (912) 561-64-32. Торопитесь! Объявление №30090228197 о продаже двухкомнатной квартиры опубликовано 07 ноября 2025.

    Позвонить Написать
    2 600 000 Р32 010 $ или 27 710
    Агент
    +7 (912) 561-64-32
    Начать чат с агентом
    Похожие предложения
    2-к кв. Коми, Усинск ул. Мира, 15 (52.1 м) - Фото 1
    2-к кв. Коми, Усинск ул. Мира, 15 (52.1 м) - Фото 2
    2-комнатная квартира, общая площадь 52м², жилая 30м², кухня 7м²

    Квартира 84 серии, с косметическим ремонтом. Стеклопакеты. Ванная, туалет-кафель. Поменяны межкомнатные двери. Мебель, б/техника. В шаговой доступности школа 5, ледовый дворец, д/сад.
    • 52 м²
    • 2-ком
    • 2/9 эт.
    • панельный
    2 550 000 Р
    Агент
    +7 (912) Показать номер
    Посмотреть контакты
    2-к кв. Коми, Усинск ул. Мира, 15 (47.9 м) - Фото 1
    2-к кв. Коми, Усинск ул. Мира, 15 (47.9 м) - Фото 2
    2-комнатная квартира, общая площадь 47м², кухня 9м²

    Двухкомнатная квартира с очень хорошей семейной аурой представлена к продаже. Очень шикарный вид из окна, вся необходимая инфраструктура рядом: школа, детский сад,спортивная школа и ледовый дворец. В квартире частично заменены окна на пластиковые, балконный...
    • 47 м²
    • 2-ком
    • 4/9 эт.
    • панельный
    2 600 000 Р
    Агент
    +7 (912) Показать номер
    Посмотреть контакты
    2-к кв. Коми, Усинск ул. Мира, 13А (51.5 м) - Фото 1
    2-к кв. Коми, Усинск ул. Мира, 13А (51.5 м) - Фото 2
    2-комнатная квартира, общая площадь 51м², жилая 30м², кухня 9м²

    Арт.Продается 2-х комнатная квартира, в хорошем состоянии. Вся мебель и техника остается. Рядом школа, детский сад, магазины, сбербанк.
    • 51 м²
    • 2-ком
    • 5/9 эт.
    • панельный
    2 600 000 Р
    Агент
    +7 (912) Показать номер
    Посмотреть контакты
    2-к кв. Коми, Усинск ул. Мира, 13А (51.1 м) - Фото 1
    2-к кв. Коми, Усинск ул. Мира, 13А (51.1 м) - Фото 2
    2-комнатная квартира, общая площадь 51м², кухня 9м²

    Продается уютная 2х комнатная квартира 125 серии. Отлично подойдет для проживания с детьми, т.к. в шаговой доступности садик, школа, ЦДОД, Дворец культуры, офисы нефтяных компаний, остановки общественного транспорта. В квартире выполнен косметический...
    • 51 м²
    • 2-ком
    • 6/9 эт.
    • панельный
    2 500 000 Р
    Агент
    +7 (912) Показать номер
    Посмотреть контакты
    2-к кв. Коми, Усинск ул. Мира, 9 (48.5 м) - Фото 1
    2-к кв. Коми, Усинск ул. Мира, 9 (48.5 м) - Фото 2
    2-комнатная квартира, общая площадь 48м², кухня 8м²

    В продаже двухкомнатная квартира с прекрасным видом из окна. Квартира очень теплая, прекрасное месторасположение, во дворе детский садик, ЦДОД, школа, бассейн рядом, в шаговой доступности спортивный комплекс. Все праздники, проводимые на площади видны...
    • 48 м²
    • 2-ком
    • 8/9 эт.
    • панельный
    2 500 000 Р
    Агент
    +7 (912) Показать номер
    Посмотреть контакты

    Не нашли подходящего объявления?

    Оставьте заявку, и наши риэлторы подберут квартиру в районе Усинска

    (0)