600 000 Р 7 710 $ или 6 600

Информация об помещении

2
Этаж

Состояние и оснащение

Количество этажей
2
Развернуть
Агент
+7 (912) 561-59-49
Начать чат с агентом

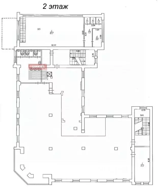
Помещение свободного назначения в Коми, Ухта просп. Ленина, 75 (500 м)

Коммерческое помещение 500м в аренду или продажу на 2-м этаже отдельно стоящего здания. Центральная улица — проспект Ленина.Расположение и трафик:— Пешеходный трафик — 546 чел/час - средний по городу 353— Рядом 102 парковочных места - 50 м от входа— 10 ПВЗ, 3 кафе, 4 аптеки, 2 остановки, 476 машин/суткиВ здании: Пятёрочка, Сбербанк, Магнит Косметик, Магнит АптекаВходы: центральный + чёрный со двора, удобный заезд для погрузкиКоммуникации:— Электричество 60 кВт— ХВС, канализация (2 точки), отопление, вентиляция— Слаботочка (охрана, серверная, СКУД, интернет)Подойдёт: под общепит, производство, офис. Ранее 25 лет работало швейное производство для Газпрома — инженерные системы выдерживают круглосуточные нагрузки.Показ в любое удобное время. Звоните или пишите в чат.

Читать полностью
    Позвонить Написать
    600 000 Р7 710 $ или 6 600
    Агент
    +7 (912) 561-59-49
    Начать чат с агентом
    Похожие предложения
    Помещение свободного назначения в Санкт-Петербург Пироговская наб., ... - Фото 1
    Помещение свободного назначения в Санкт-Петербург Пироговская наб., ... - Фото 2
    Арт.Предлагается помещение 390 кв.м. в нежилом здании под ночной - , спортивный- , фитнес-, клуб, ресторан, концертную площадку, банкетный зал, с собственной террасой на улице 30 кв.м.Отдельный вход с улицыМожно шуметь 24/7Высота потолка - 3,45 Электричество...
    • -1/6 эт.
    590 000 Р
    Агент
    +7 (911) Показать номер
    Посмотреть контакты
    Помещение свободного назначения в Рязанская область, Рязань ... - Фото 1
    Помещение свободного назначения в Рязанская область, Рязань ... - Фото 2
    Сдается в аренду помещение ресторана Рсположено на первой линии первомайского проспеукта Зона ниболее высокого в городе автомобильного и пешеходного трафика 2 этаж 355 м2 Ресторан, кухня, стойкааздачи 3 этаж 350 м2 Банкетный зал, кухня Все...
    • 2/4 эт.
    590 000 Р
    Агент
    +7 (910) Показать номер
    Посмотреть контакты
    Помещение свободного назначения в Москва 1-я Тверская-Ямская ул., 11 ... - Фото 1
    Помещение свободного назначения в Москва 1-я Тверская-Ямская ул., 11 ... - Фото 2
    1160707. Предлагаем помещение свободного назначения, площадью 79.5 кв. м, расположенное на первом этаже 9-этажного жилого дома.Преимущества объекта:-первая линия ул. 1-я Тверская-Ямская;-шаговая доступность от станции метро Маяковская (4 минуты пешком);-удобная...
    • 1/9 эт.
    590 000 Р
    Агент
    +7 (938) Показать номер
    Посмотреть контакты
    Помещение свободного назначения в Москва Багратионовский проезд, 1Ак1 ... - Фото 1
    Помещение свободного назначения в Москва Багратионовский проезд, 1Ак1 ... - Фото 2
    Уважаемый Арендатор, предлагаем Вам арендовать в ЖК Фили-парк помещение свободного назначения 106.5 м на 1 этаже на выгодных условиях.Приточно-вытяжная вентиляция. Центральное кондиционирование. Интернет, телефония. Видеонаблюдение. Система контроля...
    • 1/19 эт.
    600 004 Р
    Агент
    +7 (985) Показать номер
    Посмотреть контакты
    Помещение свободного назначения в Москва Старопименовский пер., 11С3 ... - Фото 1
    Помещение свободного назначения в Москва Старопименовский пер., 11С3 ... - Фото 2
    ОТ СОБСТВЕННИКА Сдаю в аренду нежилое помещение свободного назначения площадью 150 кв.м, расположенное в престижном районе центра Москвы по адресу: Старопименовский переулок, д. 11, стр. 3, 2 этаж. Объект идеально подходит для размещения офиса, шоурума,...
    • 2/2 эт.
    600 000 Р
    Агент
    +7 (985) Показать номер
    Посмотреть контакты

    Не нашли подходящего объявления?

    Оставьте заявку, и наши риэлторы подберут псн в районе Ухты

    (0)