250 000 Р 3 210 $ или 2 750

Информация об помещении

2
Этаж

Состояние и оснащение

Количество этажей
2
Развернуть
Агент
+7 (912) 561-59-49
Начать чат с агентом

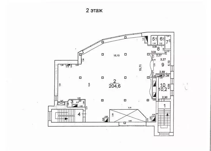
Помещение свободного назначения в Коми, Ухта просп. Ленина, 75 (200 м)

Коммерческое помещение 200 м в аренду или продажу на 2-м этаже отдельно стоящего здания. Центральная улица — проспект Ленина.Расположение и трафик:— Пешеходный трафик — 546 чел/час - средний по городу 353— Рядом 102 парковочных места - 50 м от входа— 10 ПВЗ, 3 кафе, 4 аптеки, 2 остановки, 476 машин/суткиВ здании: Пятёрочка, Сбербанк, Магнит Косметик, Магнит АптекаВходы: центральный + чёрный со двора, удобный заезд для погрузкиКоммуникации:— Электричество 60 кВт— ХВС, канализация (2 точки), отопление, вентиляция— Слаботочка (охрана, серверная, СКУД, интернет)Подойдёт: под общепит, производство, офис. Ранее 25 лет работало швейное производство для Газпрома — инженерные системы выдерживают круглосуточные нагрузки.Показ в любое удобное время. Звоните или пишите в чат

Читать полностью
    Позвонить Написать
    250 000 Р3 210 $ или 2 750
    Агент
    +7 (912) 561-59-49
    Начать чат с агентом
    Похожие предложения
    Помещение свободного назначения в Коми, Воргашор пгт ул. Катаева, 41 ... - Фото 1
    Организация сдает в аренду нежилые помещения. В арендную плату все включено
    • 2/3 эт.
    248 727 Р
    Агент
    +7 (912) Показать номер
    Посмотреть контакты
    Помещение свободного назначения в Санкт-Петербург ул. Большая ... - Фото 1
    Помещение свободного назначения в Санкт-Петербург ул. Большая ... - Фото 2
    В аренду напрямую от собственника (ИП на УСН) предлагается красивое коммерческое помещение площадью 95м2, расположенное в 7 мин. ходьбы от ст. метро Чкаловская в Апарт-отеле Бизнес-класса Грани. Первый этаж (нулевой уровень без ступеней), отдельный вход...
    • 1/8 эт.
    250 000 Р
    Агент
    +7 (981) Показать номер
    Посмотреть контакты
    Помещение свободного назначения в Краснодарский край, Краснодар ... - Фото 1
    Помещение свободного назначения в Краснодарский край, Краснодар ... - Фото 2
    Сдается в аренду нежилое помещение в цокольном этаже площадью 500 кв.м. Расположено на первой линии. Подъездные пути позволяют подъехать к зданию с любой стороны. Активный автомобильный и пешеходный трафик. Отлично просматривается со всех сторон.Свободная...
    • -1/2 эт.
    250 000 Р
    Агент
    +7 (918) Показать номер
    Посмотреть контакты
    Помещение свободного назначения в Москва Сигнальный проезд, вл16с21 ... - Фото 1
    Помещение свободного назначения в Москва Сигнальный проезд, вл16с21 ... - Фото 2
    1151628. Предлагается складское помещение общей площадью 160 кв. м. в СВАО, р-н Отрадное. 1 этаж ОСЗ. Преимущества: Первая линия, пересечение Сигнального проезда и СВХ. 5 минут пешком от ст. Владыкино . Удобная транспортная доступность: выезд на Алтуфьевское...
    • 1/2 эт.
    240 000 Р
    Агент
    +7 (938) Показать номер
    Посмотреть контакты
    Помещение свободного назначения в Волгоградская область, Волгоград ... - Фото 1
    Помещение свободного назначения в Волгоградская область, Волгоград ... - Фото 2
    От собственника, без комиссии Предлагается в аренду просторное помещение в самом центре города— создайте комфортную рабочую среду для своей команды - 2 этаж, отдельный вход с улицы Академическая;- Есть комнаты приёма пищи, санузлы;- Доступ 24/7;- Фанкойлы...
    • 2/3 эт.
    250 000 Р
    Агент
    +7 (989) Показать номер
    Посмотреть контакты

    Не нашли подходящего объявления?

    Оставьте заявку, и наши риэлторы подберут псн в районе Ухты

    (0)