Россия, Республика Коми, Ухта, просп. Зерюнова, 6
4 750 000 Р 57 500 $ или 49 040

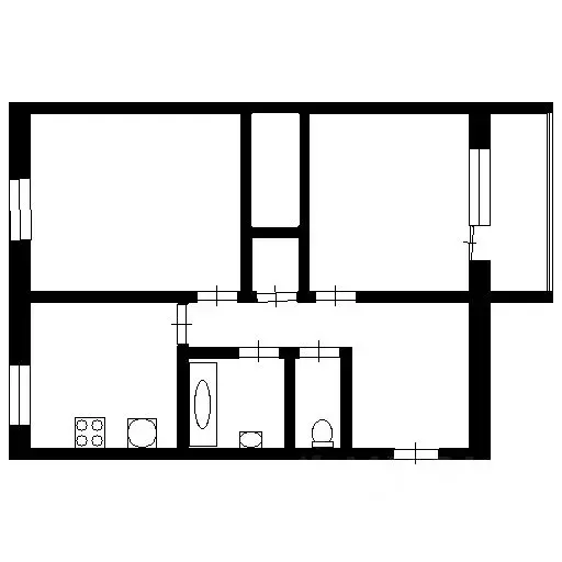
Информация о квартире

52 м2
Площадь
9 м2
Кухня
2
Комнаты
8
Этаж
9
Этажность

Дополнительная информация

Тип дома
панельный
Развернуть
Агент
Виталий Александрович Нестеров (Этажи Ухта)
+7 (912) 561-78-25
Начать чат с агентом

2-к кв. Коми, Ухта просп. Зерюнова, 6 (52.1 м)

Представьте себе уютную квартиру на восьмом этаже с прекрасным видом из квартиры окон Просторная гостиная и отдельная спальня предлагают комфорт и удобство для всей семьи. Общая площадь составляет 52 кв.м., что позволяет свободно разместить мебель и создать индивидуальное пространство для каждого члена семьи.Кухня площадью 9 кв.м. станет любимым местом для приготовления вкусных блюд и семейных ужинов. Два санузла обеспечивают дополнительное удобство, особенно если в квартире проживает несколько человек.Комнаты имеют проходную планировку, что добавляет гибкости в использовании пространства. Балкон позволит вам наслаждаться свежим воздухом и красивыми видами города. Окна ПВХ гарантируют отличную звукоизоляцию и сохранение тепла зимой.Косметический ремонт уже выполнен, так что вы сможете сразу въехать и начать новую жизнь в этой замечательной квартире. Идеально подходит для тех, кто ценит комфорт, функциональность и готов воплотить свои дизайнерские идеи в жизнь Не упустите возможность стать владельцем этой прекрасной квартиры Код пользователя: 125009Номер в базе: 5680047

Читать полностью

    Для того, чтобы купить двухкомнатную квартиру по адресу: Ухта, просп. Зерюнова, 6, позвоните по телефону +7 (912) 561-78-25. Торопитесь! Объявление №30090274628 о продаже двухкомнатной квартиры опубликовано 17 сентября 2025.

    Позвонить Написать
    4 750 000 Р57 500 $ или 49 040
    Агент
    Виталий Александрович Нестеров (Этажи Ухта)
    +7 (912) 561-78-25
    Начать чат с агентом
    Похожие предложения
    3-комнатная квартира, общая площадь 56м², жилая 44м², кухня 7м²

    В продаже трехкомнатная квартира улучшенной планировки общей площадью 56,4 кв.м. Квартира с хорошей планировкой: окна выходят на обе стороны дома, комнаты изолированные, раздельный санузел, просторные коридор и кухня.В коридоре установлен тёплый пол....
    • 56 м²
    • 3-ком
    • 1/5 эт.
    4 900 000 Р
    Агент
    +7 (963) Показать номер
    Посмотреть контакты
    2-к кв. Коми, Ухта Пионергорский проезд, 7 (49.2 м) - Фото 1
    2-к кв. Коми, Ухта Пионергорский проезд, 7 (49.2 м) - Фото 2
    2-комнатная квартира, общая площадь 49м², кухня 8м²

    Вашему вниманию 2х комнатная квартира улучшенной планировки в удобном районе Ремонт в квартире косметический: поставлены ПВХ окна, новые счётчики на воду, частично менялись полы и натянут потолок. Санузел в кафельной плитке, поставлена душевая кабинка...
    • 49 м²
    • 2-ком
    • 5/5 эт.
    • панельный
    4 700 000 Р
    Агент
    +7 (912) Показать номер
    Посмотреть контакты
    3-к кв. Коми, Ухта проезд Строителей, 26 (68.0 м) - Фото 1
    3-к кв. Коми, Ухта проезд Строителей, 26 (68.0 м) - Фото 2
    3-комнатная квартира, общая площадь 68м², кухня 8м²

    В продаже 3х комнатная квартира, улучшенной планировки.Квартира находится на 1 этаже, пятиэтажного дома, но это и является её большим плюсом. Во первых, не нужно высоко подниматься, особенно если у вас есть дети. Во вторых, у этой квартиры есть своя лоджия,...
    • 68 м²
    • 3-ком
    • 1/5 эт.
    • панельный
    4 700 000 Р
    Агент
    +7 (912) Показать номер
    Посмотреть контакты
    3-к кв. Коми, Ухта Советская ул., 18 (62.6 м) - Фото 1
    3-к кв. Коми, Ухта Советская ул., 18 (62.6 м) - Фото 2
    3-комнатная квартира, общая площадь 62м², кухня 6м²

    К продаже предложена трёхкомнатная квартира на втором этаже кирпичного дома, район города Телецентр.В квартире заменена проводка, сантехнические трубы, выровнены стены. Выполнена перепланировка (узаконена) - 2 отдельные комнаты и кухня-гостиная с выходом...
    • 62 м²
    • 3-ком
    • 2/5 эт.
    • кирпичный
    4 800 000 Р
    Агент
    +7 (912) Показать номер
    Посмотреть контакты
    3-комнатная квартира, общая площадь 57м², кухня 8м²

    Продается уютная трёхкомнатная квартира, на третьем этаже пятиэтажного дома.Адрес: ул. Интернациональная д.40аОбщая площадь: 57,3 кв.м.Комнаты не проходные.В квартире сделан хороший косметический ремонт: напольное покрытие ламинат, окна ПВХ. Большая лоджия,...
    • 57 м²
    • 3-ком
    • 3/5 эт.
    • панельный
    4 900 000 Р
    Агент
    +7 (912) Показать номер
    Посмотреть контакты

    Не нашли подходящего объявления?

    Оставьте заявку, и наши риэлторы подберут квартиру в районе Ухты

    (0)