200 000 Р 2 630 $ или 2 230

Информация об помещении

1
Этаж

Состояние и оснащение

Количество этажей
1
Развернуть
Агент
+7 (912) 140-39-15
Начать чат с агентом

Склад в Коми, Сыктывкар Дырнос мест., 92 (400 м)

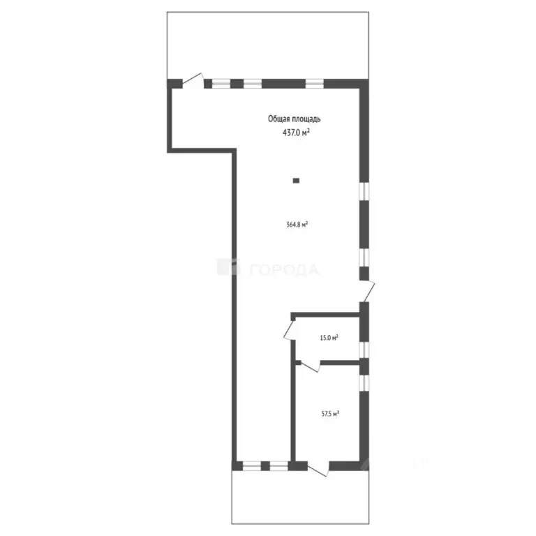
Код объекта: 1739390.Срочно сдаётся просторный склад в Сыктывкаре, по адресу: местечко Дырнос.Это идеальное решение для бизнеса, требующего значительного пространства и удобных условий.Склад площадью 400 кв. м , отапливаемое. Есть большая асфальтированная территория под круглосуточной охранойНе упустите шанс арендовать это отличное коммерческое помещение. Свяжитесь с нами прямо сейчас, чтобы узнать больше и договориться о просмотре.Мы гарантируем безопасную сделку и юридическую поддержку нашим Клиентам.

Читать полностью
    Позвонить Написать
    200 000 Р2 630 $ или 2 230
    Агент
    +7 (912) 140-39-15
    Начать чат с агентом
    Похожие предложения
    Склад в Курганская область, Курган просп. Машиностроителей, 30 (725 м) - Фото 1
    Склад в Курганская область, Курган просп. Машиностроителей, 30 (725 м) - Фото 2
    Сдается отличное отапливаемое складское помещение площадью 750 кв.м. по пр. Машиностроителей.Характеристики и описание объекта:транспортная доступность, свободный подъезд для фур;пандус под фуру, пандус под газель, возможность заезда газели внутрь склада;автономное...
    • 1/1 эт.
    196 475 Р
    Агент
    +7 (982) Показать номер
    Посмотреть контакты
    Склад в Костромская область, Кострома ул. Юрия Смирнова, 30 (700 м) - Фото 1
    Склад в Костромская область, Кострома ул. Юрия Смирнова, 30 (700 м) - Фото 2
    Предлагается в аренду отапливаемое, производственно-складское помещение, расположенное на территории складского комплекса, находящегося в месте, с отличной транспортной доступностью. Большой земельный участок позволяет удобный заезд и маневрирование большегрузному...
    • 1/1 эт.
    210 000 Р
    Агент
    +7 (915) Показать номер
    Посмотреть контакты
    Склад в Омская область, Омск ул. 3-я Молодежная, 20 (1640 м) - Фото 1
    Склад в Омская область, Омск ул. 3-я Молодежная, 20 (1640 м) - Фото 2
    Компания Аркада-Стиль предлагает в аренду производственно-складское трёх этажное кирпичное здание общей площадью 2462,1 кв.м.(расчётная площадь 1-3 этажей 1640,4 кв.м.) Возможна аренда отдельных площадей.Помещения не отапливаются,внутри оборудовано...
    • 1/3 эт.
    196 848 Р
    Агент
    +7 (913) Показать номер
    Посмотреть контакты
    Склад в Ростовская область, Батайск Самарское ш., 1А (400 м) - Фото 1
    Склад в Ростовская область, Батайск Самарское ш., 1А (400 м) - Фото 2
    Без комиссии Сдается складское помещение в Батайске площадью 400м2. Общая площадь складского помещения 500м2. Можно разделить кратно 100. Высокие потолки. Также есть возможность снять офис на 2 этаже. Офис 35м2, но есть возможность расширения. Офис полностью...
    • 1/1 эт.
    190 000 Р
    Агент
    +7 (988) Показать номер
    Посмотреть контакты
    Склад в Нижегородская область, Кстово ш. Большемокринское, 24 (1000 м) - Фото 1
    Склад в Нижегородская область, Кстово ш. Большемокринское, 24 (1000 м) - Фото 2
    Сдается в аренду производственно-складской комплекс с полным набором необходимых условий для успешной работы.Локация и преимущества: Нижний Новгород, Кстовский район Большемокринское шоссе, 24. Рядом трасса М-7 | Кстово | Бор | Дзержинск | Богородск....
    • 1/1 эт.
    200 000 Р
    Агент
    +7 (987) Показать номер
    Посмотреть контакты

    Не нашли подходящего объявления?

    Оставьте заявку, и наши риэлторы подберут склад в районе Сыктывкара

    (0)