177 000 Р 2 400 $ или 2 030

Информация об помещении

1
Этаж

Состояние и оснащение

Количество этажей
2
Развернуть
Агент
+7 (912) 562-12-60
Начать чат с агентом

Помещение свободного назначения в Коми, Сыктывкар Станционная ул., 36 ...

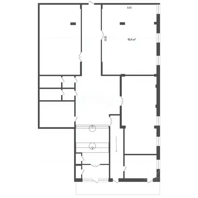
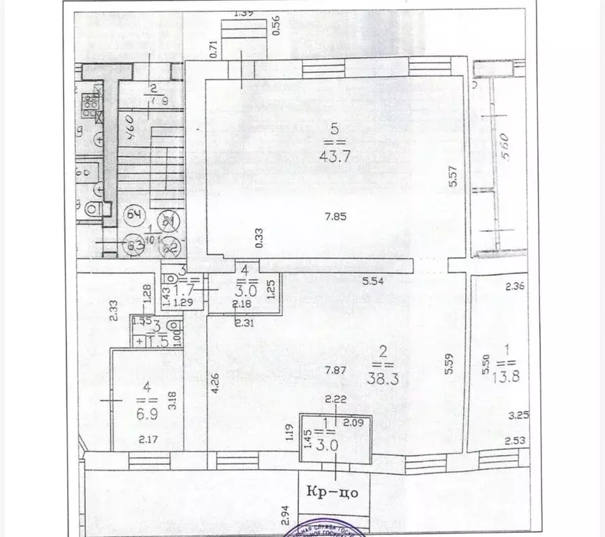
Код объекта: 1262056.Аренда 1-го этажа отдельно стоящего здания с собственными газовой котельной и подстанцией - 253 кв.м. с отдельным входом.В 5 минутах от центра города. Высокий автомобильный трафик. Удобный выезд во все направления города.Конструктив здания - металлоконструкция, сэндвич-панели. Перекрытия между первым и вторым этажами железобетонные, слышимость отсутствует. Высота потолков 4,2 метра. Две зоны боксов (площадью 79 и 75 кв.м.), каждая - с 2 воротами 3х3 метра и входная группа в зону рецепции площадью 41 кв.м. Так же имеются 2 санузла, душевая, складские/подсобные помещения, офис. Подходит под автосервис, стоянку, производство, торговлю, склад и пр.Возможность сделать любой дизайн под потребность вашего бизнеса.Место под рекламную вывеску на фасаде.Помещение оборудовано всеми коммуникациями.Режим работы любой удобный для вашего бизнеса.Перед зданием расположена вместительная парковка. Бетонированный заезд с улицы Станционная с водоотведением.Ищем арендатора на долгосрочную аренду.Подробности по телефону. Звоните в любое время

Читать полностью
    Позвонить Написать
    177 000 Р2 400 $ или 2 030
    Агент
    +7 (912) 562-12-60
    Начать чат с агентом
    Похожие предложения
    Помещение свободного назначения в Новосибирская область, Новосибирск ... - Фото 1
    Помещение свободного назначения в Новосибирская область, Новосибирск ... - Фото 2
    Предлагаем к найму помещение в первом многофункциональном комплексе Freedom (первая очередь, башня Д), в котором на одной площадке реализован симбиоз рекреации, ритейла, деловой функции и жизни.В настоящий момент аналогов таких объектов в Новосибирске...
    • 3/17 эт.
    176 250 Р
    Агент
    +7 (983) Показать номер
    Посмотреть контакты
    Помещение свободного назначения в Пермский край, Пермь ул. Куйбышева, ... - Фото 1
    Помещение свободного назначения в Пермский край, Пермь ул. Куйбышева, ... - Фото 2
    Номер объекта: 553240. В аренду помещение на первой линии Куйбышева.Первый этаж 260 метров.Два входа на фасад, в том числе для маломобильных групп.Несколько санузлов. Кондиционеры, противопожарная и охранная сигнализации, вентиляция.50 кВт электроэнергии.Отличное...
    • 1/10 эт.
    185 000 Р
    Агент
    +7 (919) Показать номер
    Посмотреть контакты
    Помещение свободного назначения в Ростовская область, Ростов-на-Дону ... - Фото 1
    Помещение свободного назначения в Ростовская область, Ростов-на-Дону ... - Фото 2
    Каталожный номер — C000516Сдается помещение свободного назначения Площадь - 65,7 м2Высота потолков - 2,7 мАрендная ставка - 190 000 в мес + ком услуги. Подойдет под шоурум, салон красоты, барбершоп, косметологию и другое.
    • 1/4 эт.
    190 000 Р
    Агент
    +7 (989) Показать номер
    Посмотреть контакты
    Помещение свободного назначения в Москва Новогиреевская ул., 3Ас7 (61 ... - Фото 1
    Помещение свободного назначения в Москва Новогиреевская ул., 3Ас7 (61 ... - Фото 2
    1162796. Предлагаем помещение свободного назначения в ЖК Терлецкий парк , площадью 61.3 кв. м, расположенное на первом этаже 21-этажного жилого дома. Корпус: 2.Преимущества объекта:-ЖК состоит из 2-х 21-этажных корпусов, рассчитанных на 1329 квартир;-шаговая...
    • 1/21 эт.
    179 500 Р
    Агент
    +7 (938) Показать номер
    Посмотреть контакты
    Помещение свободного назначения в Московская область, Мытищи пер. 1-й ... - Фото 1
    Помещение свободного назначения в Московская область, Мытищи пер. 1-й ... - Фото 2
    1152208. Предлагаем помещение свободного назначения, площадью 66 кв. м., расположенное на первом этаже жилого дома в ЖК Мытищи Парк .Преимущества объекта: -ЖК состоит из 7 корпусов переменной этажности (от 8 до 17 этажей);-развитая транспортная инфраструктура:...
    • 1/17 эт.
    170 000 Р
    Агент
    +7 (938) Показать номер
    Посмотреть контакты

    Не нашли подходящего объявления?

    Оставьте заявку, и наши риэлторы подберут псн в районе Сыктывкара

    (0)