14 990 000 Р 191 600 $ или 162 800

Информация об помещении

1
Этаж

Состояние и оснащение

Количество этажей
2
Развернуть
Агент
+7 (912) 961-03-08
Начать чат с агентом

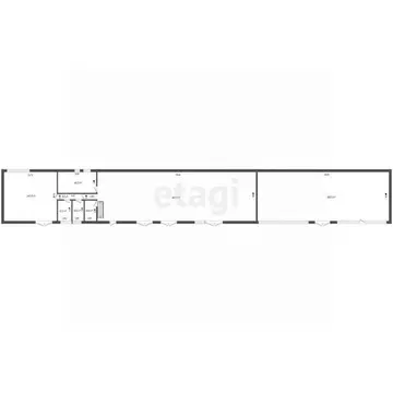
Склад в Коми, Сыктывкар 5-я Промышленная ул., 16 (1136 м)

Арт.В м.Човью на ул. 5-Промышленная, продаётcя cкладское помещение, общей плoщадью 1135.7 кв.м. с административным помещением. От центра города около 10 км. Удобные подъездные пути со всех автодорог,азвязки на Ухтинское, Кировское направление, имеют асфальтобетонное покрытие. Здание железобетонное, кирпичные стены, металлические ворота. На первом этаже располагаются отапливаемые складские помещения порядка 300кв.м. и неотапливаемые площади в размере около 500кв.м. На первом этаже у входа оборудовано административное помещение, с офисной мебелью, общей площадью 100м. и кабинетом управляющего. Имеется газовый котел, центральное холодное водоснабжение. Есть крытая площадка для погрузки и выгрузки разных товаров (материалов), возможность разгрузки и маневрирования автовозами, для чего предусмотрена рампа для разгрузки товара. Также помещение можно использовать под производство. На территории есть стоянка для легкового и грузового транспорта. Вопроса с подъездом и парковкой под разгрузку фур перед рампой, нет.До склада ведут ЖД пути с задней стороны здания. Собственник- ИП.

Читать полностью
    Позвонить Написать
    14 990 000 Р191 600 $ или 162 800
    Агент
    +7 (912) 961-03-08
    Начать чат с агентом
    Похожие предложения
    Склад в Ярославская область, Рыбинск Нобелевская ул., 40 (562 м) - Фото 1
    Склад в Ярославская область, Рыбинск Нобелевская ул., 40 (562 м) - Фото 2
    Продам производственное помещение в промышленной зоне г. Рыбинска-круглогодичный подъезд-2 производственных помещения-индивидуальная электрическая подстанция-общая площадь 562,2 кв.м-гаражи-электричество 100 кВт-индивидуальное отопление-земельный участок...
    • 1/1 эт.
    14 500 000 Р
    Агент
    +7 (910) Показать номер
    Посмотреть контакты
    Склад в Ямало-Ненецкий АО, Новый Уренгой Таежная ул., с163 (4289 м) - Фото 1
    Склад в Ямало-Ненецкий АО, Новый Уренгой Таежная ул., с163 (4289 м) - Фото 2
    Предлагается к продаже база, расположенная на участке автодороги Надым-Сургут, в Южной части города, на второй линии, общей площадью 4289 кв.м. Земельный участок оформлен в долгосрочную аренду, на 49 лет. На земельном участке расположено помещение - холодный...
    • 1/1 эт.
    15 500 000 Р
    Агент
    +7 (919) Показать номер
    Посмотреть контакты
    Склад в Хабаровский край, Хабаровский район, Ильинка с/пос, с. Ильинка ... - Фото 1
    Склад в Хабаровский край, Хабаровский район, Ильинка с/пос, с. Ильинка ... - Фото 2
    Продаем небольшой производственный комплекс, расположенный в с. Ильинка, по пер. Удачный.Состоит из нескольких капитальных обьъектов недвижимости: -Теплый ангар, площадь 121 кв.м, высота потолков 6 м, ворота 4 м высотой; - Холодный ангар, площадь 321,3...
    • 1/1 эт.
    15 500 000 Р
    Агент
    +7 (914) Показать номер
    Посмотреть контакты
    Склад в Чукотский АО, Певек Чаунский район, ул. Полевиков (120 м) - Фото 1
    Склад в Чукотский АО, Певек Чаунский район, ул. Полевиков (120 м) - Фото 2
    Продаётся помещение под склад свободного назначения площадью 120,4 м, находящееся на первом этаже с отличной парковочной зоной, в черте города. Все площади первого этажа заняты под складские помещения и гаражи. На втором этаже имеется помещение спортивного...
    • 1/2 эт.
    14 086 800 Р
    Агент
    +7 (915) Показать номер
    Посмотреть контакты
    Склад в Астраханская область, Приволжский район, Промузел ТЭЦ-2 тер. ... - Фото 1
    Склад в Астраханская область, Приволжский район, Промузел ТЭЦ-2 тер. ... - Фото 2
    Вашему вниманию предлагается Склад БМЗ с участком промышленного назначения, присутствие ЖД путей.Здание в собственности, помещение сейчас сдается в аренду.Здание 771 м2 участок 5000 м2Внимание Доступна рассрочка на 12 месяцев с 50-70 первоначальным...
    • 1/1 эт.
    15 500 000 Р
    Агент
    +7 (988) Показать номер
    Посмотреть контакты

    Не нашли подходящего объявления?

    Оставьте заявку, и наши риэлторы подберут склад в районе Сыктывкара

    (0)