9 000 000 Р 115 100 $ или 97 730

Информация об помещении

1
Этаж

Состояние и оснащение

Количество этажей
9
Развернуть
Агент
+7 (912) 140-39-15
Начать чат с агентом

Помещение свободного назначения в Коми, Сыктывкар ул. Ленина, 110 (109 ...

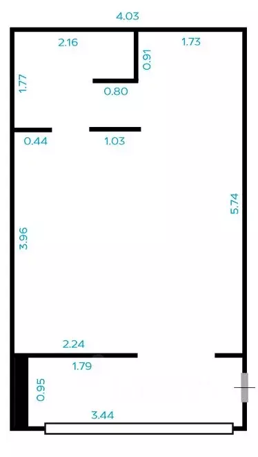
Код объекта: 1983112.Уникальное предложение для вашего бизнеса: Коммерческое помещение в центральной части города, в доме в кирпичном исполнении 2006 года постройки.О ПОМЕЩЕНИИ:- расположено в доме в кирпичном исполнении 2006 года постройки (надежные кирпичные стены);- 1 этаж с отдельным входом;- общая площадь составляет 108,9 кв. м.;- 3 кабинета + помещение оборудованное под архив;- круглосуточный/свободный доступ (что обеспечивает удобство для посетителей и сотрудников);- оснащено сплит системой (установлено 3 кондиционера);- оборудовано с/у;- оборудовано пожарной сигнализацией; охранной сигнализацией;- установлен ИПУ тепловой энергии.ПРЕИМУЩЕСТВА:- развитая инфраструктура центральной части города, но отсутствие шума и суеты;- свободный доступ в помещение;- 1 собственник;- транспортная доступность;- на территории расположена парковка;- остается представленная на фотографиях мебель (за исключением стеллажей).ОСОБЕННОСТИ:- можно перепланировать в жилое помещение (квартиру) с ОТДЕЛЬНЫМ ВХОДОМ.Расположение и инфраструктура:- в шаговой доступности расположены: банки, государственные и муниципальные учреждения и ведомства, магазины разного профиля, Стефановская площадь, Парк культуры и отдыха имени С. М. Кирова, автобусные остановки.ЛЕГКО ПРИОБРЕСТИ:- юридически чистый вариант;- цена полностью отражается в договоре.Представленное помещение - отличный вариант для вложения денежных средств.Приобретение помещения является надежным вложением денежных средств и также может являться гарантией стабильного пассивного дохода.

Читать полностью
    Позвонить Написать
    9 000 000 Р115 100 $ или 97 730
    Агент
    +7 (912) 140-39-15
    Начать чат с агентом
    Похожие предложения
    Помещение свободного назначения (108.9 м) - Фото 1
    Помещение свободного назначения (108.9 м) - Фото 2
    Код объекта: 1983112.Уникальное предложение для вашего бизнеса: просторная коммерческая площадь в центре Сыктывкара, готовая к реализации ваших идей.Продаётся коммерческое помещение свободного назначения по адресу: Россия, Республика Коми, Сыктывкар,...
    • 1/9 эт.
    9 000 000 Р
    Агент
    +7 (906) Показать номер
    Посмотреть контакты
    Помещение свободного назначения в Коми, Ухта ул. Дежнева, 17 (1761 м) - Фото 1
    Помещение свободного назначения в Коми, Ухта ул. Дежнева, 17 (1761 м) - Фото 2
    Продается уникальное нежилое помещение, идеально подходящее для гостиничного бизнеса Эта великолепная гостиница расположена в четырехэтажном здании, которое находится в отличном состоянии и готово к эксплуатации. Ваша новая инвестиция включает в себя...
    • 1/4 эт.
    8 900 000 Р
    Агент
    +7 (912) Показать номер
    Посмотреть контакты
    Помещение свободного назначения в Москва ул. 2-я Марьиной рощи, 20 (22 ... - Фото 1
    Помещение свободного назначения в Москва ул. 2-я Марьиной рощи, 20 (22 ... - Фото 2
    Вайт бокс (White Box).Продается помещение, которое подойдет под салон красоты, крафтовый магазин, офис, массаж, склад и другое. До метро Марьина Роща 3 минуты пешком. 1 собственник, договор купли-продажи 2020 года. Согласование просмотра по телефону.
    • 1/16 эт.
    9 000 000 Р
    Агент
    +7 (923) Показать номер
    Посмотреть контакты
    Помещение свободного назначения в Ямало-Ненецкий АО, Новый Уренгой ... - Фото 1
    Помещение свободного назначения в Ямало-Ненецкий АО, Новый Уренгой ... - Фото 2
    Запускайте бизнес без забот Автомойка под ключ . Выгодное расположение, современное оснащение. готовые клиенты. 1 этаж 198 м2. есть дополнительно второй этаж. Можно использовать для проживания, под склад, комната отдыха. Бизнес полностью автоматизирован...
    • 1/1 эт.
    9 000 000 Р
    Агент
    +7 (982) Показать номер
    Посмотреть контакты
    Помещение свободного назначения в Санкт-Петербург пос. Шушары, просп. ... - Фото 1
    Помещение свободного назначения в Санкт-Петербург пос. Шушары, просп. ... - Фото 2
    Коммерческое помещение номер - 14Н.Продажа коммерческого помещения 53,4 м в ЖК АЭРОСИТИ 5 . Дом сдан и заселён в 2025 году Станьте частью нового быстро растущего квартала Открыта продажа помещений в новом монолитном доме от ГК Лидер Групп .- 10 мин....
    • 1/12 эт.
    9 078 000 Р
    Агент
    +7 (989) Показать номер
    Посмотреть контакты

    Не нашли подходящего объявления?

    Оставьте заявку, и наши риэлторы подберут псн в районе Сыктывкара

    (0)