5 000 000 Р 60 880 $ или 52 630

Информация о помещении и здании

1
Этаж
9
Этажность
Развернуть
Агент
+7 (912) 181-20-65
Начать чат с агентом

Офис в Коми, Сыктывкар ул. Оплеснина, 5 (48 м)

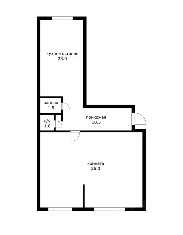
Арт.Продам офисное помещение в центре города. Отдельный вход с улицы.3 кабинета (в каждом кабинете есть подвод воды), холл, кладовая и санузел. Идеально под косметологическую клинику, стоматологию, салон красоты либо под офис(сейчас используется как офис) Возможен перевод в жилой фонд, получится прекрасная двухкомнатная квартира с лоджией во двор(лоджия 6 м2 не входит в общую площадь) .

Читать полностью
    Позвонить Написать
    5 000 000 Р60 880 $ или 52 630
    Агент
    +7 (912) 181-20-65
    Начать чат с агентом
    Похожие предложения
    Офис в Коми, Сыктывкар ул. Оплеснина, 5 (52 м) - Фото 1
    Офис в Коми, Сыктывкар ул. Оплеснина, 5 (52 м) - Фото 2
    1-й этаж, всего 9 этажей

    В продаже помещение в центре города на первом этаже жилого дома со своим входом со двора. Внутри три комнаты, в двух из них есть умывальники + отдельный с/у. Ранее помещение полностью занимала строительная компания, на данный момент две комнаты арендуются....
    • 1/9 эт.
    5 000 000 Р
    Агент
    +7 (912) Показать номер
    Посмотреть контакты
    Офис в Коми, Сыктывкар 5-я Промышленная ул., 22/2 (129 м) - Фото 1
    Офис в Коми, Сыктывкар 5-я Промышленная ул., 22/2 (129 м) - Фото 2
    1-й этаж, всего 1 этаж

    Арт.Продаётся кирпичное здание площадью 129 м . Просторная площадь идеально подходит для ведения бизнеса или организации рабочего пространства. Основные характеристики здания включают: - Три комфортабельных кабинета для комфортной работы сотрудников;...
    • 1/1 эт.
    5 000 000 Р
    Агент
    +7 (912) Показать номер
    Посмотреть контакты
    Офис в Коми, Сыктывкар Первомайская ул., 22 (39 м) - Фото 1
    Офис в Коми, Сыктывкар Первомайская ул., 22 (39 м) - Фото 2
    2-й этаж, всего 10 этажей

    Арт.Продажа последнего коммерческого помещения от застройщика в новом доме ЖК Петергоф 3. Дом сдан.Если вы искали коммерческое помещение с отличным расположением — этот шанс стоит использовать.Пространство для вашего бизнеса в сердце активной жизни. Рядом...
    • 2/10 эт.
    5 097 300 Р
    Агент
    +7 (912) Показать номер
    Посмотреть контакты
    Офис в Калининградская область, Гурьевский муниципальный округ, пос. ... - Фото 1
    Офис в Калининградская область, Гурьевский муниципальный округ, пос. ... - Фото 2
    цокольный этаж, всего 9 этажей

    Арт.Предлагается к продаже помещение свободного назначения, идеально подходящее для организации офиса. Объект расположен по адресу: Гурьевский район, поселок Васильково, улица Весенняя, дом 1. Общая площадь помещения составляет 52.9 квадратных метра.На...
    • -1/9 эт.
    5 100 000 Р
    Агент
    +7 (911) Показать номер
    Посмотреть контакты
    Офис в Краснодарский край, Краснодар Славянский мкр, ул. Заполярная, ... - Фото 1
    Офис в Краснодарский край, Краснодар Славянский мкр, ул. Заполярная, ... - Фото 2
    1-й этаж, всего 22 этажа

    Продается цокольное помещение.Хороший ремонт, вся мебель остается. При необходимости вывозим что не требуется.Отличное расположение под коммерцию т.к торцевое расположение в первом доме от дороги.По любым вопросам звоните, уместен небольшой торг при наличии...
    • 1/22 эт.
    5 000 000 Р
    Агент
    +7 (918) Показать номер
    Посмотреть контакты

    Не нашли подходящего объявления?

    Оставьте заявку, и наши риэлторы подберут офис в районе Сыктывкара

    (0)