5 239 500 Р 64 700 $ или 55 400

Информация о помещении и здании

4
Этаж
4
Этажность
Развернуть
Агент
+7 (912) 562-12-60
Начать чат с агентом

Офис в Коми, Сыктывкар ул. Ленина, 74 (150 м)

Код объекта: 1075902. Продается помещение на 4 этаже 4-этажного административно-офисного здания 2016 года постройки.Описание и преимущества:• легко добраться;• большой пешеходный и автомобильный трафики;• свободный доступ к помещению в любое время суток;• здание находится под круглосуточной охраной;• возможна перепланировка/установка перегородок;• высокие потолки;• окна помещения обеспечивают достаточный уровень естественного солнечного света;• качественные пластиковые конструкции/окна;• привлекательная входная группа;• туалетные комнаты в достаточном количестве расположены на этаже;• места общего пользования в отличном состоянии;• просторная парковка;• отличный вариант для вложения денежных средств с потенциалом роста арендной платы.Расположение и инфраструктура:• Расположено в самом центре деловой активности Сыктывкара;• окна помещения выходят на ул. Ленина - Центральный вход в здание;• в шаговой доступности: банки, государственные и муниципальные учреждения и ведомства, магазины разного профиля, Стефановская площадь, парки, автобусные остановки.ЛЕГКО ПРИОБРЕСТИ:• юридически чистый вариант;• цена полностью отражается в договоре;• 1 собственник.Дополнительная информация:• возможно предоставление помещения в пользование на условиях аренды.В наличии также иные варианты коммерческих/офисных помещений разной площади, в том числе в других локациях города. Подробности можно узнать в телефонной беседе, а также при личной встрече в офисе компании.Приобретение помещения в бизнес-центре является надежным вложение денежных средств и гарантирует стабильный пассивный доход.

Читать полностью
    Позвонить Написать
    5 239 500 Р64 700 $ или 55 400
    Агент
    +7 (912) 562-12-60
    Начать чат с агентом
    Похожие предложения
    Офис в Коми, Воркута ул. Суворова, 19А (376 м) - Фото 1
    Офис в Коми, Воркута ул. Суворова, 19А (376 м) - Фото 2
    1-й этаж, всего 5 этажей

    Код лота: 62C46C. Реализуется на торгах. К реализации на аукционе в открытой форме предлагается нежилое помещение 1-го этажа, общей площадью 375, 5 кв. м, находящееся в собственности АО Почта России , расположенное по адресу: Республика Коми, г. Воркута,...
    • 1/5 эт.
    5 282 000 Р
    Агент
    +7 (915) Показать номер
    Посмотреть контакты
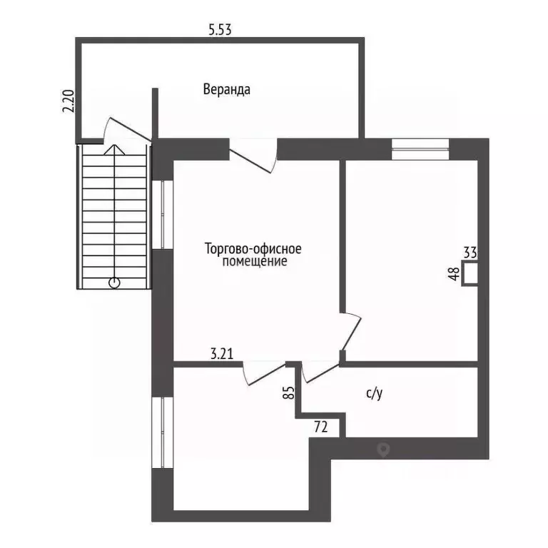
    Продается Торгово-офисные помещения - Фото 1
    Продается Торгово-офисные помещения - Фото 2
    Продается Торгово-офисные помещения - Фото 3
    Продается Торгово-офисные помещения - Фото 4
    Продается Торгово-офисные помещения - Фото 5
    Продается Торгово-офисные помещения - Фото 6
    Продается Торгово-офисные помещения - Фото 7
    Продается Торгово-офисные помещения - Фото 8
    Продается Торгово-офисные помещения - Фото 9
    Продается Торгово-офисные помещения - Фото 10
    реализуемая площадь 44.8м², 1-й этаж, всего 1 этаж

    Выгодное предложение для вашего бизнеса! Продается зарегистрированное нежилое здание площадью 44,8 м на проспекте Октябрьской Революции, 61, на рынке ул. Юмашева. Идеальное место для развития вашего дела! Удобное расположение: на территории рынка ул....
    • 44.8 м²
    • 1/1 эт.
    5 250 000 Р
    Агент
    +7 (978) Показать номер
    Посмотреть контакты
    Офис в Тульская область, Тула ул. Демонстрации, 46 (56 м) - Фото 1
    Офис в Тульская область, Тула ул. Демонстрации, 46 (56 м) - Фото 2
    1-й этаж, всего 9 этажей

    Арт.Предлагается на продажу торгово офисное помещение в центре города. 56 кв.м.Местоположение: г.Тула, Советский район, ул. Демонстрации, д. 46.Характеристика местности: Помещение расположено цокольном этаже жилого дома. В самом центре города, практически...
    • 1/9 эт.
    5 100 000 Р
    Агент
    +7 (915) Показать номер
    Посмотреть контакты
    Офис в Омская область, Омск ул. Серова, 7 (48 м) - Фото 1
    Офис в Омская область, Омск ул. Серова, 7 (48 м) - Фото 2
    1-й этаж, всего 3 этажа

    АН ДОМОФОН предлагает к продаже коммерческое помещение расположенное в центре города О ПОМЕЩЕНИИ: Общая площадь - 48 м2Жилая площадь 35,2 м2Холл 2,5 м2Совмещенный санузел 2,5 м2 Преимущества помещения: Отдельный вход обеспечивает удобство...
    • 1/3 эт.
    5 300 000 Р
    Агент
    +7 (913) Показать номер
    Посмотреть контакты
    Офис в Санкт-Петербург Купчинская ул., 23к1В (61 м) - Фото 1
    Офис в Санкт-Петербург Купчинская ул., 23к1В (61 м) - Фото 2
    1-й этаж, всего 2 этажа

    Код лота: 62C46C. Реализуется на торгах. Помещение свободного назначения во Фрунзенском районе на Купчинской улице Общая площадь: 60, 6 кв. м Собственность. Продается помещение свободного назначения, расположенное на первой линии домов по Купчинской...
    • 1/2 эт.
    5 244 000 Р
    Агент
    +7 (981) Показать номер
    Посмотреть контакты

    Не нашли подходящего объявления?

    Оставьте заявку, и наши риэлторы подберут офис в районе Сыктывкара

    (0)