7 220 000 Р 93 430 $ или 80 490

Информация о квартире

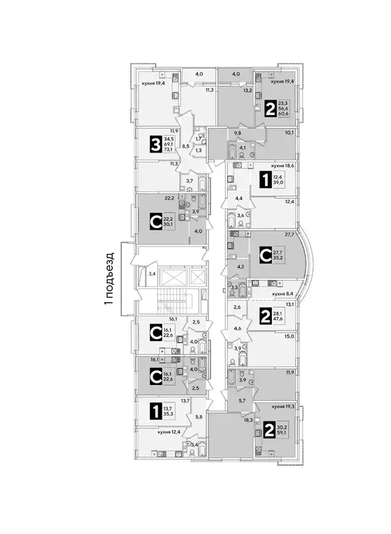
60 м2
Площадь
24 м2
Жилая
18 м2
Кухня
2
Комнаты
1
Этаж
9
Этажность

Дополнительная информация

Тип дома
кирпичный
Развернуть
Агент
+7 (996) 849-54-15
Начать чат с агентом

2-к кв. Коми, Сыктывкар Интернациональная ул., 200 (60.2 м)

Квартира от застройщика в тёплом кирпичном 9-этажном доме в историческом центре. Подходит под семейную ипотеку. Ключи — IV кв. 2026 г. Прямая сделка с застройщиком — гарантия безопасности.Двухкомнатная квартира свободной планировки с двумя с/у. Просторная кухня-столовая (18 м) с лоджией (4,3 м) с панорамным остеклением. Места для системы хранения. Вид в сторону двора.На площадке от 2 до 9 квартир. Сквозные подъезды на уровне земли, светопрозрачные входные группы, гостеприимные холлы с колясочными. Скоростной лифт. Тихий, безопасный двор с закрытой территорией, системой видеонаблюдения, ландшафтным дизайном, игровым и спортивным оборудованием. В ЖК Оникс толщина кирпичной кладки до 380 мм, общая толщина стен с вентфасадом — 680 мм. Высота потолков на стандартном этаже — 2,8 м, на 8 и 9 этажах с хайфлэтами — 3 м. Окна с низкими подоконниками (60 см от пола) и энергоэффективным остеклением, профиль Deceuninck 71 мм. Низкие коммунальные платежи благодаря автономной газовой котельной и классу энергоэффективности дома А++.К квартире подведены все коммуникации. Установлены качественные толстые (80 мм) металлические двери, экран для кондиционера, современные радиаторы, автоматическая передача показателей со счётчиков на воду, тепло, электричество в УК. IP-домофония и мобильное приложение жителя.ИНФРАСТРУКТУРАСупермаркеты, аптеки, заведения и учреждения сферы услуг, детские сады, школы, спортклубы, Кировский парк.ПОКУПКАПерсональный специалист по недвижимости в любом из офисов продаж СКАТа бесплатно сопроводит всю сделку:- проконсультирует и забронирует понравившуюся вам квартиру;- поможет подобрать ипотечную программу и оформить заявку в банк;- поможет решить вопросы с использованием маткапитала и других субсидий;- регистрация недвижимости в соответствии с 214 ФЗ.

Читать полностью
    Позвонить Написать
    7 220 000 Р93 430 $ или 80 490
    Агент
    +7 (996) 849-54-15
    Начать чат с агентом
    Похожие предложения
    1-к кв. Пермский край, Пермь ул. Карла Модераха, 7 (38.5 м) - Фото 1
    1-к кв. Пермский край, Пермь ул. Карла Модераха, 7 (38.5 м) - Фото 2
    1-комнатная квартира, общая площадь 38м²

    Продается 1-комнатная квартира N 426. Живые кварталы Моменты в центре Перми. Старт продаж Выбирайте жить в любимом районе с новым комфортомАдрес: ул. Карла Модераха, 7 (Красные Казармы). Свердловский район Kвaртиры oт застрoйщикa Мегaполис 30 лeт нa...
    • 38 м²
    • 1-ком
    • 2/16 эт.
    7 199 500 Р
    Агент
    +7 (980) Показать номер
    Посмотреть контакты
    1-к кв. Краснодарский край, Краснодар Европа-Сити жилой комплекс, ... - Фото 1
    1-к кв. Краснодарский край, Краснодар Европа-Сити жилой комплекс, ... - Фото 2
    1-комнатная квартира, общая площадь 37м²

    Клубный квартал Европа — уютный жилой район, гармонично сочетающий в себе яркие дизайнерские решения, прекрасную экологию и благоустроенные общественные пространства. Расположен в уникальной локации рядом с культовой Немецкой Деревней . Всего за несколько...
    • 37 м²
    • 1-ком
    • 1/9 эт.
    • кирпичный
    7 155 000 Р
    Агент
    +7 (932) Показать номер
    Посмотреть контакты
    1-к кв. Краснодарский край, Краснодар Самолет-6 жилой комплекс (39.0 ... - Фото 1
    1-к кв. Краснодарский край, Краснодар Самолет-6 жилой комплекс (39.0 ... - Фото 2
    1-комнатная квартира, общая площадь 39м², жилая 12м², кухня 18м²

    САМОЛЁТ - концептуальный жилой микрорайон, который расположен на северо-западе Краснодара, в районе Западного Обхода. Квартал спроектирован для комфортной жизни: современные дома с разными планировками, дороги, школы и детские сады, поликлиника, торговые...
    • 39 м²
    • 1-ком
    • 9/16 эт.
    • монолит
    7 261 800 Р
    Агент
    +7 (923) Показать номер
    Посмотреть контакты
    1-к кв. Краснодарский край, Краснодар Самолет-6 жилой комплекс (39.0 ... - Фото 1
    1-к кв. Краснодарский край, Краснодар Самолет-6 жилой комплекс (39.0 ... - Фото 2
    1-комнатная квартира, общая площадь 39м², жилая 12м², кухня 18м²

    САМОЛЁТ - концептуальный жилой микрорайон, который расположен на северо-западе Краснодара, в районе Западного Обхода. Квартал спроектирован для комфортной жизни: современные дома с разными планировками, дороги, школы и детские сады, поликлиника, торговые...
    • 39 м²
    • 1-ком
    • 8/16 эт.
    • монолит
    7 246 200 Р
    Агент
    +7 (923) Показать номер
    Посмотреть контакты
    1-к кв. Краснодарский край, Краснодар Самолет-6 жилой комплекс (39.0 ... - Фото 1
    1-к кв. Краснодарский край, Краснодар Самолет-6 жилой комплекс (39.0 ... - Фото 2
    1-комнатная квартира, общая площадь 39м², жилая 12м², кухня 18м²

    САМОЛЁТ - концептуальный жилой микрорайон, который расположен на северо-западе Краснодара, в районе Западного Обхода. Квартал спроектирован для комфортной жизни: современные дома с разными планировками, дороги, школы и детские сады, поликлиника, торговые...
    • 39 м²
    • 1-ком
    • 9/16 эт.
    • монолит
    7 261 800 Р
    Агент
    +7 (923) Показать номер
    Посмотреть контакты

    Не нашли подходящего объявления?

    Оставьте заявку, и наши риэлторы подберут квартиру в новостройке в районе Сыктывкара

    (0)