6 400 000 Р 79 040 $ или 68 030

Информация о квартире

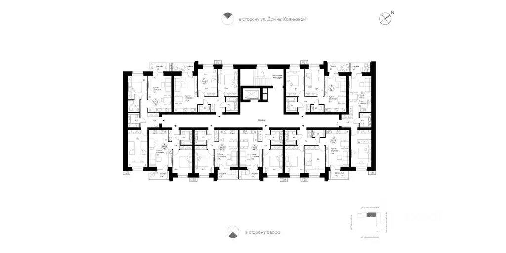
44 м2
Площадь
12 м2
Жилая
19 м2
Кухня
1
Комната
8
Этаж
9
Этажность

Дополнительная информация

Тип дома
кирпичный
Развернуть
Агент
+7 (996) 849-54-15
Начать чат с агентом

1-к кв. Коми, Сыктывкар Интернациональная ул., 200 (44.5 м)

Квартира от застройщика в тёплом кирпичном 9-этажном доме в историческом центре. Подходит под семейную ипотеку. Ключи — IV кв. 2026 г. Прямая сделка с застройщиком — гарантия безопасности.Однокомнатная квартира свободной планировки. Просторная кухня-столовая (19,7 м). Французский выход на балкон (3,8 м) с панорамным остеклением. Места для систем хранения, большой совмещенный с/у. Вид во двор.На площадке от 2 до 9 квартир. Сквозные подъезды на уровне земли, светопрозрачные входные группы, гостеприимные холлы с колясочными. Скоростной лифт. Тихий, безопасный двор с закрытой территорией, системой видеонаблюдения, ландшафтным дизайном, игровым и спортивным оборудованием. В ЖК Оникс толщина кирпичной кладки до 380 мм, общая толщина стен с вентфасадом — 680 мм. Высота потолков на стандартном этаже — 2,8 м, на 8 и 9 этажах с хайфлэтами — 3 м. Окна с низкими подоконниками (60 см от пола) и энергоэффективным остеклением, профиль Deceuninck 71 мм. Низкие коммунальные платежи благодаря автономной газовой котельной и классу энергоэффективности дома А++.К квартире подведены все коммуникации. Установлены качественные толстые (80 мм) металлические двери, экран для кондиционера, современные радиаторы, автоматическая передача показателей со счётчиков на воду, тепло, электричество в УК. IP-домофония и мобильное приложение жителя.ИНФРАСТРУКТУРАСупермаркеты, аптеки, заведения и учреждения сферы услуг, детские сады, школы, спортклубы, Кировский парк.ПОКУПКАПерсональный специалист по недвижимости в любом из офисов продаж СКАТа бесплатно сопроводит всю сделку:- проконсультирует и забронирует понравившуюся вам квартиру;- поможет подобрать ипотечную программу и оформить заявку в банк;- поможет решить вопросы с использованием маткапитала и других субсидий;- регистрация недвижимости в соответствии с 214 ФЗ.

Читать полностью
    Позвонить Написать
    6 400 000 Р79 040 $ или 68 030
    Агент
    +7 (996) 849-54-15
    Начать чат с агентом
    Похожие предложения в Сыктывкаре
    1-к кв. Коми, Сыктывкар Интернациональная ул., 200 (53.5 м) - Фото 1
    1-к кв. Коми, Сыктывкар Интернациональная ул., 200 (53.5 м) - Фото 2
    1-комнатная квартира, общая площадь 53м², жилая 16м², кухня 20м²

    Квартира от застройщика в тёплом кирпичном 9-этажном доме в историческом центре. Подходит под семейную ипотеку. Ключи — IV кв. 2026 г. Прямая сделка с застройщиком — гарантия безопасности.Необычная однокомнатная квартира свободной планировки. Двусторонняя...
    • 53 м²
    • 1-ком
    • 1/9 эт.
    • кирпичный
    6 370 000 Р
    Агент
    +7 (996) Показать номер
    Посмотреть контакты
    1-к кв. Коми, Сыктывкар Интернациональная ул., 200 (44.5 м) - Фото 1
    1-к кв. Коми, Сыктывкар Интернациональная ул., 200 (44.5 м) - Фото 2
    1-комнатная квартира, общая площадь 44м², жилая 12м², кухня 19м²

    Квартира от застройщика в тёплом кирпичном 9-этажном доме в историческом центре. Подходит под семейную ипотеку. Ключи — IV кв. 2026 г. Прямая сделка с застройщиком — гарантия безопасности.Однокомнатная квартира свободной планировки. Просторная кухня-столовая...
    • 44 м²
    • 1-ком
    • 9/9 эт.
    • кирпичный
    6 500 000 Р
    Агент
    +7 (996) Показать номер
    Посмотреть контакты
    1-к кв. Коми, Сыктывкар Интернациональная ул., 200 (45.9 м) - Фото 1
    1-к кв. Коми, Сыктывкар Интернациональная ул., 200 (45.9 м) - Фото 2
    1-комнатная квартира, общая площадь 45м², жилая 13м², кухня 19м²

    Квартира от застройщика в тёплом кирпичном 9-этажном доме в историческом центре. Подходит под семейную ипотеку. Ключи — IV кв. 2026 г. Прямая сделка с застройщиком — гарантия безопасности.Однокомнатная квартира свободной планировки. Просторная кухня-столовая...
    • 45 м²
    • 1-ком
    • 9/9 эт.
    • кирпичный
    6 500 000 Р
    Агент
    +7 (996) Показать номер
    Посмотреть контакты
    1-к кв. Коми, Сыктывкар Интернациональная ул., 200 (43.8 м) - Фото 1
    1-к кв. Коми, Сыктывкар Интернациональная ул., 200 (43.8 м) - Фото 2
    1-комнатная квартира, общая площадь 43м², жилая 16м², кухня 11м²

    Квартира от застройщика в тёплом кирпичном 9-этажном доме в историческом центре. Подходит под семейную ипотеку. Ключи — IV кв. 2026 г. Прямая сделка с застройщиком — гарантия безопасности.Однокомнатная квартира свободной планировки. Отдельная большая...
    • 43 м²
    • 1-ком
    • 9/9 эт.
    • кирпичный
    6 500 000 Р
    Агент
    +7 (996) Показать номер
    Посмотреть контакты
    1-к кв. Коми, Сыктывкар Интернациональная ул., 200 (44.7 м) - Фото 1
    1-к кв. Коми, Сыктывкар Интернациональная ул., 200 (44.7 м) - Фото 2
    1-комнатная квартира, общая площадь 44м², жилая 12м², кухня 19м²

    Квартира от застройщика в тёплом кирпичном 9-этажном доме в историческом центре. Подходит под семейную ипотеку. Ключи — IV кв. 2026 г. Прямая сделка с застройщиком — гарантия безопасности.Однокомнатная квартира свободной планировки. Просторная кухня-столовая...
    • 44 м²
    • 1-ком
    • 9/9 эт.
    • кирпичный
    6 500 000 Р
    Агент
    +7 (996) Показать номер
    Посмотреть контакты

    Не нашли подходящего объявления?

    Оставьте заявку, и наши риэлторы подберут квартиру в новостройке в районе Сыктывкара

    (0)