7 880 000 Р 97 300 $ или 83 310

Информация о квартире

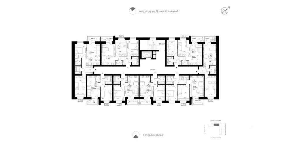
62 м2
Площадь
24 м2
Жилая
19 м2
Кухня
2
Комнаты
5
Этаж
9
Этажность

Дополнительная информация

Тип дома
кирпичный
Развернуть
Агент
+7 (996) 849-54-15
Начать чат с агентом

2-к кв. Коми, Сыктывкар Интернациональная ул., 200 (62.4 м)

Квартира от застройщика в тёплом кирпичном 9-этажном доме в историческом центре. Подходит под семейную ипотеку. Ключи — IV кв. 2026 г. Прямая сделка с застройщиком — гарантия безопасности.Двухкомнатная квартира свободной планировки. Просторная кухня-столовая (19,7 м) с французским выходом на лоджию (4,9 м) с панорамным остеклением. Возможность сделать мастер-спальню. Два с/у. Вид в сторону ул. Д.Каликовой.На площадке от 2 до 9 квартир. Сквозные подъезды на уровне земли, светопрозрачные входные группы, гостеприимные холлы с колясочными. Скоростной лифт. Тихий, безопасный двор с закрытой территорией, системой видеонаблюдения, ландшафтным дизайном, игровым и спортивным оборудованием. В ЖК Оникс толщина кирпичной кладки до 380 мм, общая толщина стен с вентфасадом — 680 мм. Высота потолков на стандартном этаже — 2,8 м, на 8 и 9 этажах с хайфлэтами — 3 м. Окна с низкими подоконниками (60 см от пола) и энергоэффективным остеклением, профиль Deceuninck 71 мм. Низкие коммунальные платежи благодаря автономной газовой котельной и классу энергоэффективности дома А++.К квартире подведены все коммуникации. Установлены качественные толстые (80 мм) металлические двери, экран для кондиционера, современные радиаторы, автоматическая передача показателей со счётчиков на воду, тепло, электричество в УК. IP-домофония и мобильное приложение жителя.ИНФРАСТРУКТУРАСупермаркеты, аптеки, заведения и учреждения сферы услуг, детские сады, школы, спортклубы, Кировский парк.ПОКУПКАПерсональный специалист по недвижимости в любом из офисов продаж СКАТа бесплатно сопроводит всю сделку:- проконсультирует и забронирует понравившуюся вам квартиру;- поможет подобрать ипотечную программу и оформить заявку в банк;- поможет решить вопросы с использованием маткапитала и других субсидий;- регистрация недвижимости в соответствии с 214 ФЗ.

Читать полностью
    Позвонить Написать
    7 880 000 Р97 300 $ или 83 310
    Агент
    +7 (996) 849-54-15
    Начать чат с агентом
    Похожие предложения в Сыктывкаре
    2-к кв. Коми, Сыктывкар Интернациональная ул., 200 (64.9 м) - Фото 1
    2-к кв. Коми, Сыктывкар Интернациональная ул., 200 (64.9 м) - Фото 2
    2-комнатная квартира, общая площадь 64м², жилая 26м², кухня 20м²

    Квартира от застройщика в тёплом кирпичном 9-этажном доме в историческом центре. Подходит под семейную ипотеку. Ключи — IV кв. 2026 г. Прямая сделка с застройщиком — гарантия безопасности.Двухкомнатная квартира свободной планировки. Просторная кухня-столовая...
    • 64 м²
    • 2-ком
    • 1/9 эт.
    • кирпичный
    7 890 000 Р
    Агент
    +7 (996) Показать номер
    Посмотреть контакты
    1-к кв. Коми, Сыктывкар Интернациональная ул., 200 (54.2 м) - Фото 1
    1-к кв. Коми, Сыктывкар Интернациональная ул., 200 (54.2 м) - Фото 2
    1-комнатная квартира, общая площадь 54м², жилая 16м², кухня 21м²

    Квартира от застройщика в тёплом кирпичном 9-этажном доме в историческом центре. Подходит под семейную ипотеку. Ключи — IV кв. 2026 г. Прямая сделка с застройщиком — гарантия безопасности.Необычная однокомнатная квартира свободной планировки. Двусторонняя...
    • 54 м²
    • 1-ком
    • 9/9 эт.
    • кирпичный
    7 930 000 Р
    Агент
    +7 (996) Показать номер
    Посмотреть контакты
    2-к кв. Коми, Сыктывкар Интернациональная ул., 200 (62.4 м) - Фото 1
    2-к кв. Коми, Сыктывкар Интернациональная ул., 200 (62.4 м) - Фото 2
    2-комнатная квартира, общая площадь 62м², жилая 24м², кухня 19м²

    Квартира от застройщика в тёплом кирпичном 9-этажном доме в историческом центре. Подходит под семейную ипотеку. Ключи — IV кв. 2026 г. Прямая сделка с застройщиком — гарантия безопасности.Двухкомнатная квартира свободной планировки. Просторная кухня-столовая...
    • 62 м²
    • 2-ком
    • 2/9 эт.
    • кирпичный
    7 890 000 Р
    Агент
    +7 (996) Показать номер
    Посмотреть контакты
    2-к кв. Коми, Сыктывкар Интернациональная ул., 200 (63.3 м) - Фото 1
    2-к кв. Коми, Сыктывкар Интернациональная ул., 200 (63.3 м) - Фото 2
    2-комнатная квартира, общая площадь 63м², жилая 25м², кухня 20м²

    Квартира от застройщика в тёплом кирпичном 9-этажном доме в историческом центре. Подходит под семейную ипотеку. Ключи — IV кв. 2026 г. Прямая сделка с застройщиком — гарантия безопасности.Двухкомнатная квартира свободной планировки с двумя с/у. Просторная...
    • 63 м²
    • 2-ком
    • 6/9 эт.
    • кирпичный
    7 910 000 Р
    Агент
    +7 (996) Показать номер
    Посмотреть контакты
    2-к кв. Коми, Сыктывкар Интернациональная ул., 200 (70.6 м) - Фото 1
    2-к кв. Коми, Сыктывкар Интернациональная ул., 200 (70.6 м) - Фото 2
    2-комнатная квартира, общая площадь 70м², жилая 28м², кухня 21м²

    Квартира от застройщика в тёплом кирпичном 9-этажном доме в историческом центре. Подходит под семейную ипотеку. Ключи — IV кв. 2026 г. Прямая сделка с застройщиком — гарантия безопасности.Двухкомнатная квартира свободной планировки. Удобная прихожая с...
    • 70 м²
    • 2-ком
    • 1/9 эт.
    • кирпичный
    7 990 000 Р
    Агент
    +7 (996) Показать номер
    Посмотреть контакты

    Не нашли подходящего объявления?

    Оставьте заявку, и наши риэлторы подберут квартиру в новостройке в районе Сыктывкара

    (0)