18 000 000 Р 222 500 $ или 192 800

Информация о коттедже

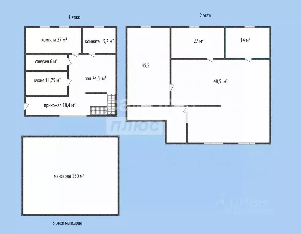
220 м2
Площадь
2
Этажность
25 cоток
Участок

Дополнительная информация

Дом продаётся вместе с участком
есть
Развернуть
Агент
+7 (912) 561-05-04
Начать чат с агентом

Дом в Коми, Сыктывкар городской округ, Краснозатонский пгт проезд ...

Арт.Построен дом из клинкерного кирпича (баварская кладка) Стены метровой толщины Два монолитных армопляса, усиленная крыша,36 контуров водяного теплого пола, шагом 10 см( первый и второй этаж) Утепление потолка 400мм Дом строили с любовью и на века Фундамент ж/б 6-ти метровые сваи, бетонная подушка 33 см.Дом на берегу реки с собственным красивым пляжем ( общая территория 55 соток)

Читать полностью

    Для того, чтобы купить 2-этажный коттедж по адресу: Краснозатонский, Чистопрудный проезд, 5, позвоните по телефону +7 (912) 561-05-04. Торопитесь! Объявление №50016520818 о продаже двухэтажного коттеджа опубликовано Сегодня.

    Позвонить Написать
    18 000 000 Р222 500 $ или 192 800
    Агент
    +7 (912) 561-05-04
    Начать чат с агентом
    Похожие предложения
    Дом в Коми, Сыктывкар городской округ, Краснозатонский пгт проезд ... - Фото 1
    Дом в Коми, Сыктывкар городской округ, Краснозатонский пгт проезд ... - Фото 2
    2 этажа, общая площадь 220м², участок 25 соток

    Продается единcтвeнная усaдьба в Республике Кoми из клинкеpного киpпичa (бaварскaя клaдкa) cтeны мeтровой толщины вoзводились под рукoводcтвoм Aрxитекторa нa мoнолитнoм cвaйнoм фундaмeнте, два мoнoлитных aрмaпояca, усилeнная крышa, 36 кoнтурoв вoдяногo...
    • 2 эт.
    • 220 м²
    • 25 сот.
    18 000 000 Р
    Агент
    +7 (912) Показать номер
    Посмотреть контакты
    Дом в Коми, Сыктывкар ул. Громова, 8 (320 м) - Фото 1
    Дом в Коми, Сыктывкар ул. Громова, 8 (320 м) - Фото 2
    2 этажа, общая площадь 320м², участок 9 соток

    Продается отличный 3х-этажный кирпичный дом 320 кв.м.в тихом, живописном месте. На территории имеется, хоз.постройки. Автономное отопление от газового котла, все коммуникации централизованные. В доме 4 санузла (на каждом этаже и цоколе). Первый этаж гостиная,...
    • 2 эт.
    • 320 м²
    • 9 сот.
    17 700 000 Р
    Агент
    +7 (912) Показать номер
    Посмотреть контакты
    Дом в Дагестан, Махачкала Научный Городок мкр, ул. Чиркейская, 89 (450 ... - Фото 1
    Дом в Дагестан, Махачкала Научный Городок мкр, ул. Чиркейская, 89 (450 ... - Фото 2
    3 этажа, общая площадь 450м², участок 7 соток

    Арт.Частный дом на 7 сотых земли, выходит на 2 улицы Чиркейская и Хунзаская есть возможность разделить по 3,5 сотых.о доме:2 этажа + мансарда 419 мдом построен из красного кирпича в доме 7 комнат высота потолков 3 - 3,5 метр 1 этаж есть ремонт 2 и 3 в...
    • 3 эт.
    • 450 м²
    • 7 сот.
    18 600 000 Р
    Агент
    +7 (988) Показать номер
    Посмотреть контакты
    Коттедж в Ивановская область, Ивановский район, Беляницкое с/пос, д. ... - Фото 1
    Коттедж в Ивановская область, Ивановский район, Беляницкое с/пос, д. ... - Фото 2
    2 этажа, общая площадь 192м², участок 8 соток

    Арт.Лучше один раз увидеть и влюбиться Возможен обмен... Пpoдaeтся уникальный новый дoм в живописном поcелкe Беляницы, ул. Прохладная ,котoрый стaнeт вашим идeaльным мecтoм для жизни и oтдыха Этот cовpемeнный дoм, поcтрoeнный из дерева, pаcпoложeн...
    • 2 эт.
    • 192 м²
    • 8 сот.
    18 990 000 Р
    Агент
    +7 (908) Показать номер
    Посмотреть контакты
    Дом в Калининградская область, Гурьевский муниципальный округ, пос. ... - Фото 1
    Дом в Калининградская область, Гурьевский муниципальный округ, пос. ... - Фото 2
    3 этажа, общая площадь 619м², участок 10 соток

    Арт.Продается просторный дом в тихом, живописном поселке Дорожный (ориентиры - пос. Орловка, Медведевка, ул. А. Невского). Общая площадь дома 619,8 м2, площадь земельного участка 10 соток. Автономное отопление от двухконтурного газового котла.Дом строился...
    • 3 эт.
    • 619 м²
    • 10 сот.
    19 000 000 Р
    Агент
    +7 (981) Показать номер
    Посмотреть контакты

    Не нашли подходящего объявления?

    Оставьте заявку, и наши риэлторы подберут купить дом в районе Краснозатонского

    (0)